このページを印刷する
- 価格
-
1,000万円
| 所在地 | 千葉県袖ケ浦市奈良輪 |
|---|---|
| 交通 |
|
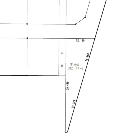
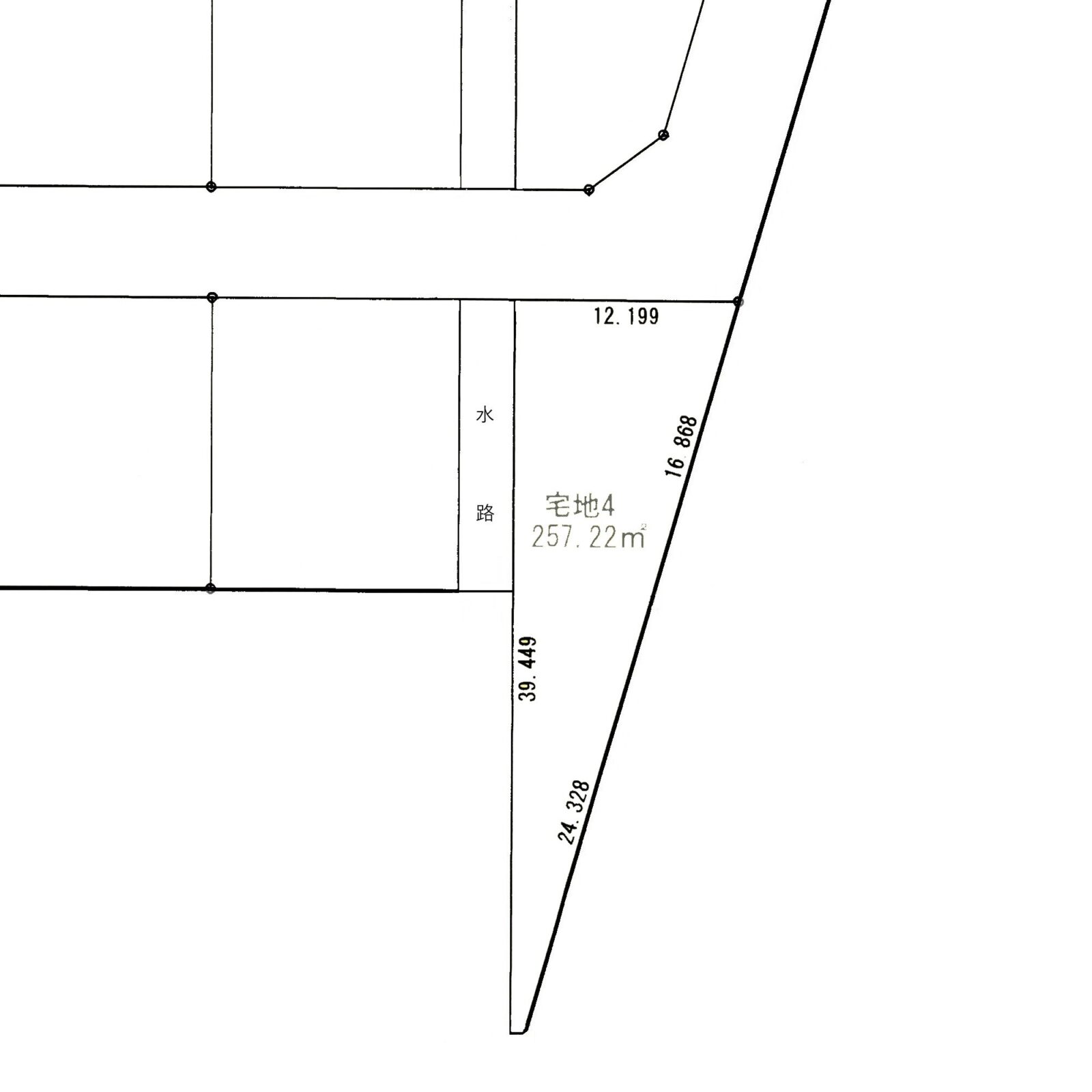
| 土地面積 | 257.22㎡(77.80坪) | 取引態様 | 売主 |
|---|---|---|---|
| 引渡/入居時期 | 即時 | 現況 | 更地 |
| 地目 | 宅地 | 用途地域 | 無指定 |
| 都市計画 | 市街化調整区域 | 地勢 | 平坦 |
| 建ぺい率 | 50% | 容積率 | 100% |
| 土地権利 | 所有権 | 駐車場 | |
| 接道 | 北西側約6m | ||
| 国土法届出 | 不要 | ||
| 周辺環境 | 袖ヶ浦駅まで徒歩約18分、奈良輪小まで徒歩約6分、昭和中まで徒歩約21分、ゆりまち袖ヶ浦駅前モールまで車で約4分 | ||
| 学区 | |||
| 設備・条件 |
|
||
| 物件番号 | |||
| 物件カテゴリー | |||
●総販売区画数12区画
●開発許可番号 千葉県君土指令第2634号
●法第41条第1項の制限 床面の高さが想定浸水深以上となる居室を設けること
●水道納付金 297,000円(税込)※20mm口径 売買価格とは別途必要です。
●売主 ㈱サンワエステート
●建築条件付き宅地分譲 本物件は、土地売買契約締結後3か月以内に建築会社との間で建築工事請負契約を締結いただくことを条件として販売致します。 建築会社につきましてはお問い合わせください。
☆変形地ではありますが、しっかり建物プランは入ります!参考パースを載せていますので画像チェックしてみてください!
☆人気の奈良輪エリアでこの価格!ぜひ、この機会にご検討ください!
~アクセス~
■JR内房線「袖ヶ浦駅」徒歩約18分
■袖ヶ浦市立奈良輪小学校 徒歩約6分
■袖ヶ浦市立昭和中学校 徒歩約21分
■「ゆりまち袖ヶ浦駅前モール」 車約4分
物件掲載内容と現況に相違がある場合は現況を優先といたします。
物件周辺マップ
Loading...
ご注意
- 物件によっては正確な位置を示していない場合がございます。
- 現況が表示された内容と異なる場合は現況優先といたします。
- 表示されてる地図はGoogle社より提供されてるデータに基づいたものであり、表示内容についての責任は負いかねます。























